54
$379,900 Sale
Listed 5 hours ago
431 Richards Street W
· 3
· 1.5
· 1
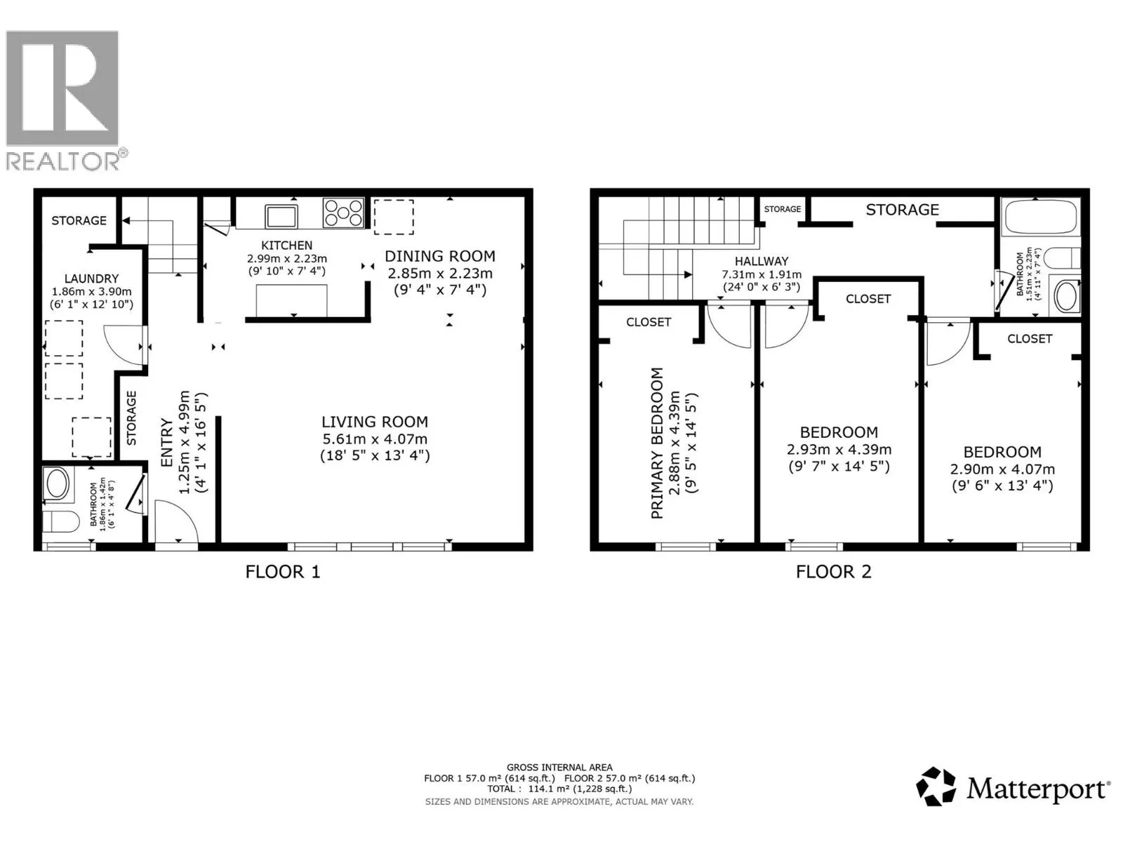
· 1228
Key Facts
Key facts for 431 Richards Street W
Property Type
Townhome, Row / Townhouse
Parking
Garage: No, 1 parking
MLS #
10367292
Size
1228 sqft
Basement
Crawl space
Listed on
-
Lot size
-
Tax
-
Days on Market
-
Year Built
1969
Maintenance Fee
$300/mo
Description
Discover a fantastic opportunity to own a three-bedroom, one-and-a-half-bathroom townhouse perfectly situated in Nelson's Rosemont neighbourhood. This 1,228 sq ft end-unit is thoughtfully laid out to maximize every inch of living space, creating a bright and welcoming atmosphere ideal for a family ...or first-time buyer. Freshly painted through out. The main floor boasts a wonderfully efficient flow, featuring a large living room with abundant natural light, a dining area, and the kitchen, which retains its original, sturdy cupboards complemented by a brand-new stove (under a year old). A convenient half-bathroom and a dedicated laundry room ensure convenient comfort and ease of living. Upstairs, you will find three generous bedrooms, a full bathroom, and excellent built-in storage. With an assigned parking space and a low-fee strata that is well-established within the 16-unit complex, this unit offers exceptional value and convenience. The location is unbeatable, placing you steps from Rosemont Elementary School and the recreational amenities of Art Gibbons Park, offering quick access to local trails and community life. (id:10452)
Similar Properties (No results)
Room Types
Bedroom
-
Dimensions 13'4'' x 9'6''
126.67 sqft
Bedroom
-
Dimensions 14'5'' x 9'7''
138.16 sqft
Dining room
-
Dimensions 7'4'' x 9'4''
68.44 sqft
Listing courtesy of: Bennett Family Real Estate
This REALTOR.ca listing content is owned and licensed by REALTOR® members of The Canadian Real Estate Association.