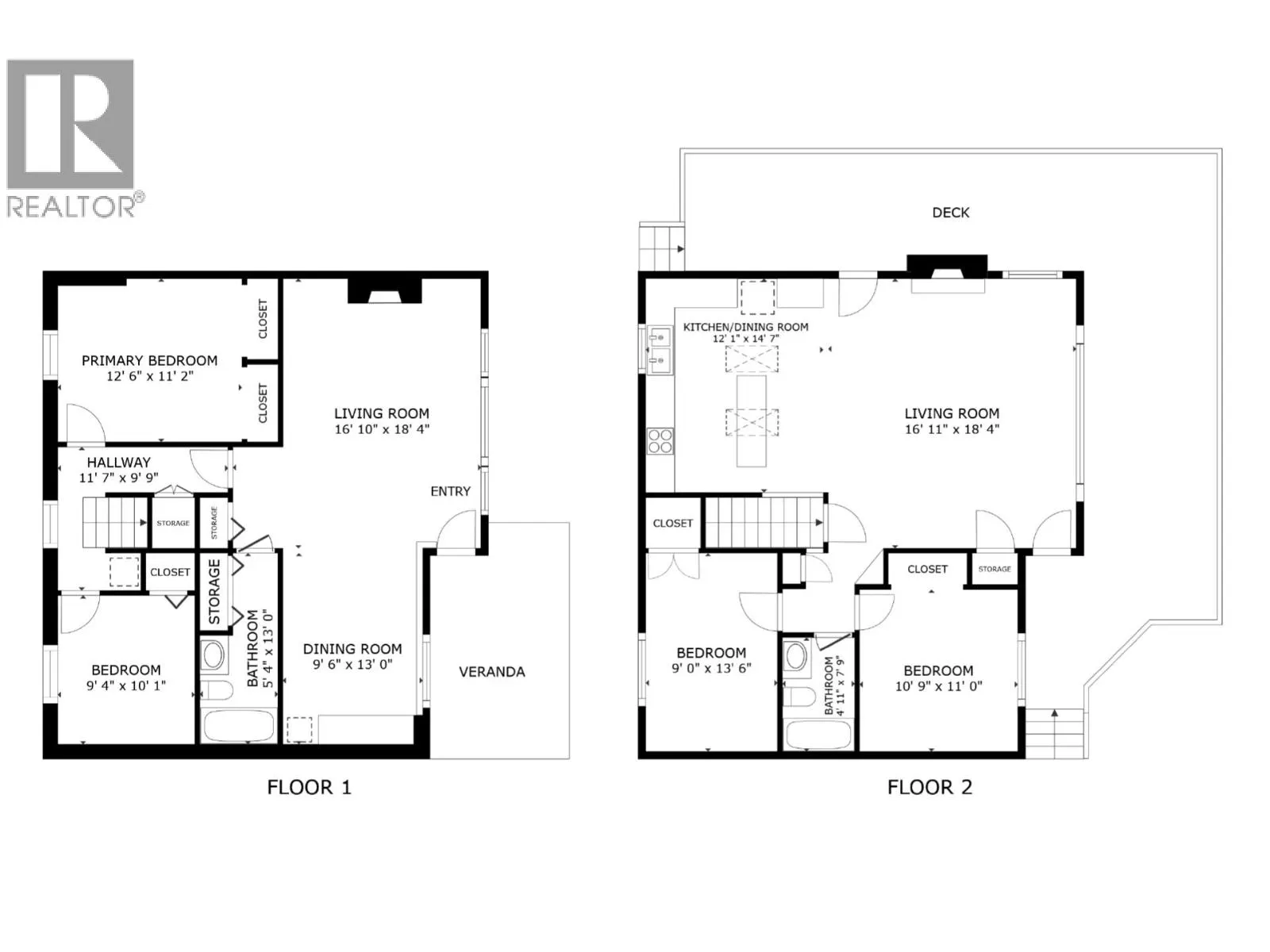
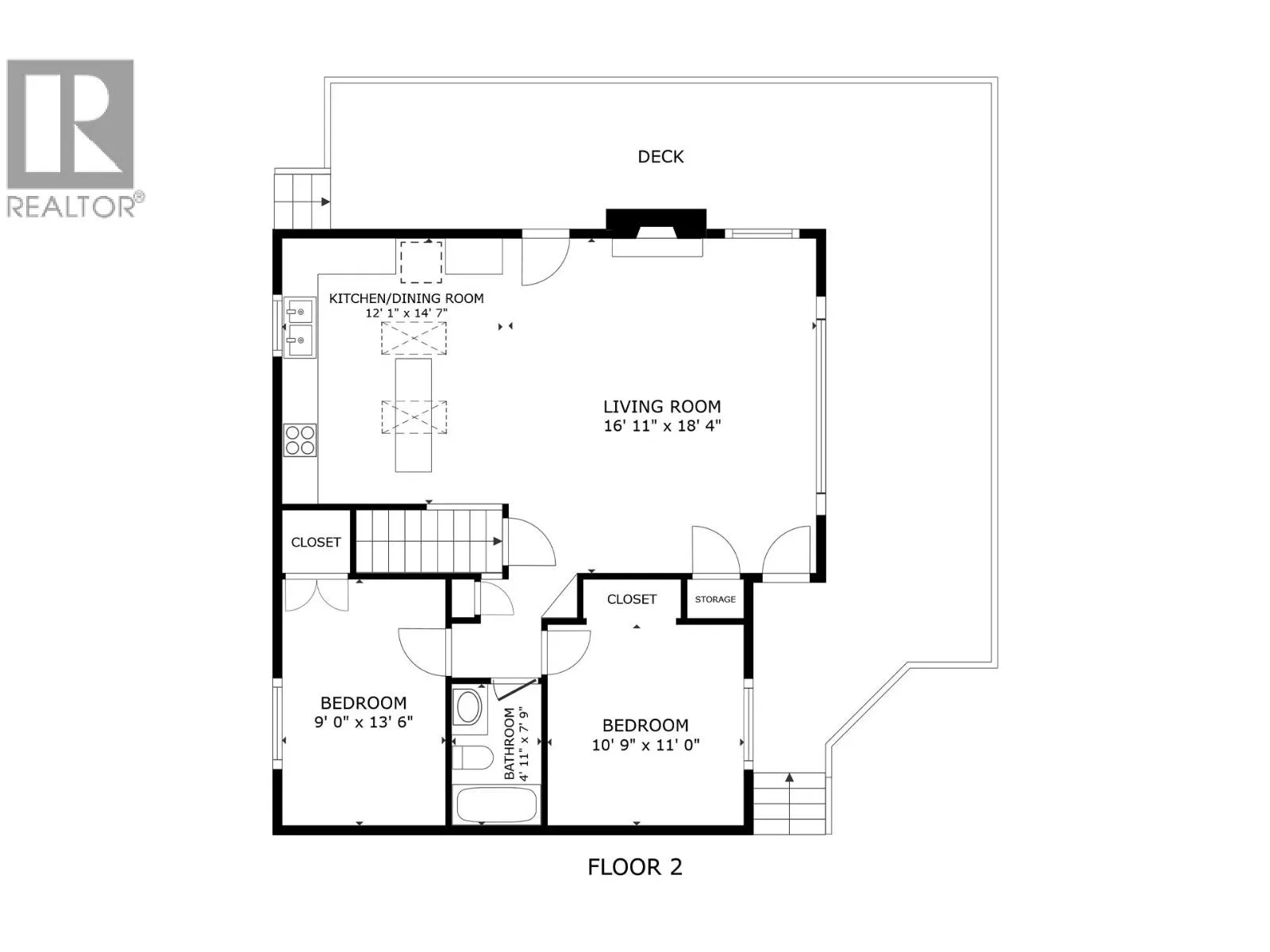
Property Type
House, House
Parking
Garage: No, 4 parking
MLS #
10366685
Size
1918 sqft
Basement
Full
Listed on
-
Lot size
-
Tax
-
Days on Market
-
Year Built
1960
Maintenance Fee
-
